2024年9月14日(土)、二番目に訪れたのはCorullón、Iglesia de San Estebanです。
ここは、レオン地方のロマネスク様式を代表する建物です。鐘楼ポーチ、西扉口と身廊の持ち送りに注目です。
2024年7月15日から9月17日は、カスティーリャ・イ・レオン州政府の資金援助による記念碑的建造物開館プログラムのため、火曜から日曜の11:00〜14:00と17:00〜20:00に開いていました。
Corullón では、2か所に行きました。以下のように2回に分けて書きます。
<1> Iglesia de San Esteban
<2> Iglesia de San Miguel
目次
1. Corullón .
2. 概要 .
3. 平面図 .
4. 内観 .
5. 外観(南壁の持ち送り) .
6. 外観(鐘楼) .
7. 外観(西扉口) .
8. 外観(北壁の持ち送り) .
1. Corullón
コルジョン(Corullón)は、カスティーリャ・イ・レオン州レオン県にある村で、県都レオンの約102km西にあります。
教会は、教区教会として、集落の西側にあります。

2. 概要
教会の中に案内がありました。私が一部を抜粋して太字で和訳します。
1086年に貴族ペドロ・ムニス(Pedro Muñiz)とその父によって建てられた、レオン地方のロマネスク様式を代表する建物である。ロマネスク様式の要素の中で特に際立っているのは、鐘楼とポーチ、サンティアゴ大聖堂のプラテリアスの扉口(portada de las Platerías)の建設に関わった職人たちと関連のある見事な西扉口、鐘楼に刻まれた11世紀末の創設の碑文、そして人物像で飾られた持ち送りである。後陣、聖具室、身廊の骨組み、鐘楼の上部は、後の時代に建設されたものである。
この後は、Románico Digital を引用する時に太字で書きます。
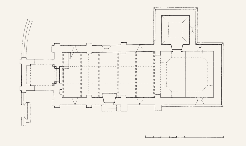
3. 平面図
Románico Digital による平面図です。東が右です。

ロマネスク様式の構造としては、身廊と鐘楼の下部が残っている。ゴメス・モレノ(Gómez-Moreno)は半円形の後陣があったと推測しているが、17世紀に現在の正方形の後陣に置き換えられ、18世紀末に北側に聖具室が増築された。
4. 内観
教会の中に入ります。

北壁に、ロマネスク彫刻の断片が展示されています。
「聖ステファノの殉教」(『使徒言行録』7章)の場面だと思います。この教会は聖ステファノ(San Esteban)に捧げられています。
左の聖人のニンブスに「SCI STEFANVS PRI」と刻まれていて、右の人物は両手に石のようなものを持っています。

5. 外観(南壁の持ち送り)
身廊の南北の軒下には、合計36個の見事な持ち送りがあります。

植物や動物、人物などが彫られています。

腕のある石工の仕事だと思います。

6. 外観(鐘楼)
鐘楼をみます。
身廊の西側に、ポーチ鐘楼がある。その上部は19世紀前半の建築だが、構造の大部分は現存している。
レオン地方で保存されている中では、建物の西側に鐘楼があることは少なく、扉口を保護しているものはさらに少ない。レオンのサンタ・マリア・デル・メルカド(Santa María del Mercado)や、かなり後期のサラス・デ・ロス・バリオス(Salas de los Barrios)、さらに南部の、より後期のレデスマのサンタ・マリア・ラ・マヨール(Santa María la Mayor de Ledesma )やサモラのサンタ・マリア・デ・ラ・オルタ(Santa María de la Horta de Zamora)などが例として挙げられる。
フランスには、建物の西側に建築されたポーチ鐘楼が、より多く残っているように思います。例えば、モワサック(Moissac)、ディ(Die)、ポワティエ(Poitiers)の Église Saint-Porchaire と Église Sainte-Radegonde などです。

鐘楼の北壁には、碑文があります。
鐘楼に保存されている碑文は、11世紀末からこの教会が存在していたことを証明している。
IN NOMINE DOMINI NOSTRI IESU CHRISTI ET IN HONORE(m) SANCTI STEPHANI SACRATUS EST LOCUS ISTE AB EPISCOPO ASTORICENSE NOMINE OSMUNDO IN ERA CENTIES DE[ce]NA ET BIS QUINQUAGENA ATQUE DUODENA ET IIII QUOTUM XVII KALENDAS IANUARII PER MANUS DE PETRO MONINCI ET PRESBITER CUIUS ORICO ERAT. POSTEA AD ANNOS VII EIECIT EAM ET A FUNDAMENTO CONSTRUXIT ET IN ALIOS VII FUIT PERFECTA.
「我らの主イエス・キリストの名において、聖ステファノに敬意を表し、アストルガの司教オスムンドによって、100×10×2×5×24(1124年、すなわち西暦1086年)、 1月17日(12月16日)に、ペドロ・ムニス(Pedro Muñiz)の命令により、オリコが司祭を務めていた。7年後、彼はこの建物を解体し、再建し、さらに7年後に完成した」

7. 外観(西扉口)
西扉口をみます。
美しい西扉口は、サン・イシドロ・デ・レオン(San Isidoro de León)とともに、レオン・ロマネスク様式の最盛期の最も傑出した遺構のひとつである。
興味深いのは、外側の柱の軸で、左側はコンポステーラ風の植物装飾が絡み合っており、右側は部分的に大理石で、扉口を構成する美しいピンク色の花崗岩とは対照的であり、再利用の可能性を示唆している。これらの柱が冠する柱頭も花崗岩で作られている。

左(北)側の柱頭には、絡み合うブドウ、向かい合って同じ杯から飲む2羽の鳥が彫られていると思います。

右(南)側の柱頭には、植物モチーフが彫られています。

8. 外観(北壁の持ち送り)
北壁の持ち送りを12個ご紹介します。
持ち送り1: 音楽家、持ち送り2: ヒゲ面、持ち送り3: 一対の鳥、だと思います。
持ち送り4: 女性、持ち送り5: 四足獣、持ち送り6: 鳥、だと思います。
持ち送り7: 四足獣、持ち送り8: 四足獣、持ち送り9: 男性、だと思います。
持ち送り7: 裸の男性、持ち送り8: 裸の女性、持ち送り9: 男性、だと思います。
Iglesia de San Esteban。レオン地方のロマネスク様式を代表する建物です。鐘楼ポーチ、西扉口と身廊の持ち送りに注目です。
・
・
・














